Projekte in Erdbebenzonen müssen durch einen erfahrenen Baustatiker überprüft werden, da bei genauer Analyse weniger konservative Werte resultieren. Für Gebäude der Bauwerksklasse III muss zusätzlich die Gebrauchstauglichkeit nachgewiesen werden.

Projekte in Erdbebenzonen müssen durch einen erfahrenen Baustatiker überprüft werden, da bei genauer Analyse weniger konservative Werte resultieren. Für Gebäude der Bauwerksklasse III muss zusätzlich die Gebrauchstauglichkeit nachgewiesen werden.
Wenn Sie die Erdbebenkategorie manuell auswählen, können wir zwar den richtigen Aufzug für die gewählte Kategorie empfehlen, nicht aber überprüfen, ob dieser tatsächlich den Anforderungen am Standort entspricht.
Die aktuellen Aufzugsnormen und gesetzlichen Vorschriften zu Aufzügen beeinflussen die Aufzugskonstruktion ebenso wie Wartungs- und Inspektionsarbeiten. Hier finden Sie eine Übersicht.
Alte Aufzüge können Sicherheitsrisiken bergen: So führen fehlende Kabinenabschlusstüren, eine schlechte Anhaltegenauigkeit oder fehlendes Sicherheitsglas immer wieder zu Unfällen.
Aus diesem Grund haben bereits gewisse Kantone die Umsetzung einzelner Punkte aus der Safety Norm for Existing Lifts (SNEL) gesetzlich vorgeschrieben. Es handelt sich dabei um eine europäische Sicherheitsnorm für bestehende Aufzüge, die in der Schweiz als SIA-Norm publiziert ist. Wo keine spezifischen Sicherheitsvorschriften existieren, sind Aufzugsbetreiber gemäss OR Artikel 58 dennoch in der Pflicht.
Bei der Installation neuer Anlagen oder Ersatzanlagen gilt es neben den gesetzlichen Grundlagen der Aufzugsverordnung und der Maschinenverordnung des Bundes auch kantonale Bauvorschriften zu beachten.
Das Behindertengleichstellungsgesetz (BehiG) kommt zur Anwendung:
Die Details zur Ausgestaltung des Zugangs und zu den technischen Ausführungsbestimmungen sind geregelt gemäss der Schweizer Norm SN 521500 (SIA 500), im kantonalen Baurecht und in der Europäischen Norm SN EN 81-70.
Die Brandschutznorm sowie die Brandschutzrichtlinien und Prüfbestimmungen sind in der gesamten Schweiz identisch. Sie wurden von der Vereinigung Kantonaler Feuerversicherungen (VKF) übernommen und enthalten. Die Vorschriften in Bezug auf die Erdbebensicherheit unterscheiden sich je Kanton.
Neu- und Umbauvorhaben nachfolgender Gebäudekategorien müssen den Anforderungen an das hindernisfreie Bauen entsprechen und insbesondere hindernisfrei zugänglich sein.
Die Fachstelle Hindernisfreie Architektur empfiehlt bei allen Neubauten, auch im Wohnungsbau, den Mindestanforderungen des Aufzug Typs 3 gerecht zu werden. Die Nutzerfreundlichkeit und -flexibilität des Gebäudes wird für alle verbessert: für Eltern mit Kinderwagen, Personen mit Velo, ältere Besucher mit Rollator oder für Materialtransport.
Eine Person mit Rollstuhl (Begleitperson nur beschränkt möglich) oder mit Gehhilfe
1.00 m x 1.25 m
Diese Kabine darf nur in bestehenden Bauten eingesetzt werden und nur wenn Statik und Grundriss des Gebäudes den Einbau einer Kabine Typ 2 nicht zulässt.
Diese Dimension schliesst grössere Rollstühle, insbesondere Elektro-Rollstühle, von der Nutzung aus.

Eine Person mit Rollstuhl oder Gehhilfe und eine weitere Person
1.10 m x 1.40 m
Diese Kabinengrösse gilt gemäss Norm SIA 500 als Minimum in kleineren Neu- und Umbauten (Abweichungen siehe Typ 1).

Ein bis zwei Personen mit Rollstuhl oder Gehhilfe und weitere Personen
1.10 m x 2.10 m
Diese Kabinengrösse gilt als Minimum für Aussenräume und bei hohem Publikverkehr (z.B. Bahnhöfe).
Eine Kabinentiefe von 2.10 m ermöglicht die Nutzung mit Rollstuhl-Zuggeräten, Elektro-Scooter, überlangen Rollstühlen sowie mit Rettungstrage.
Bei Spezialbauten gilt Typ 3 als minimale Aufzugsgrösse.

Eine Person mit Rollstuhl oder Gehhilfe und weitere Personen
1.40 x 1.60 m / 1.60 x 1.40 m
Diese Kabinengrösse gilt als Minimum, wo Zugänge auf mehreren Seiten erforderlich sind. Türen sind auch auf drei Seiten möglich.
Mit dieser Grösse ist die 90°-Drehung, um durch die zweite Türe auszufahren, mit dem Elektro-Rollstuhl möglich.

Eine Person mit Rollstuhl oder Gehhilfe und weitere Personen
1.40 x 2.00 m / 2.00 x 1.40 m
Diese Kabinengrösse stellt einen ausreichenden Wenderaum für Personen mit Elektro-Rollstühlen und für solche mit Gehhilfen zur Verfügung.

Nutzung siehe Typ 3 / Typ 2
1.00 m x 1.25 m
Diese Kabinengrösse stellt einen ausreichenden Wenderaum für Personen mit Elektro-Rollstühlen und für solche mit Gehhilfen zur Verfügung.


Bild 1: Bewegungsfläche und Absturzgefahr

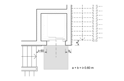
Bild 2: Abstand zu seitlichen Treppenabgängen

Bild 3: Abstand zwischen Raumecken oder Treppen

Bild 4: Leitlinie zur Ruftaste eines Aufzugs
Behindertengleichstellungsgesetz (BehiG)
Kantonale Bestimmungen – Hindernisfreie Architektur | Die Schweizer Fachstelle
Je nach Erschliessungskonzept sind Bauten und Anlagen mit einem oder mehreren Feuerwehraufzügen auszurüsten. Hochhäuser sind mit Feuerwehraufzügen auszurüsten.

Es gibt keine verbindliche Definition eines Hochhauses. Die meisten kantonalen Bauordnungen und auch die Schweizerischen Brandschutznormen verstehen darunter ein Gebäude mit einer Höhe von mehr als 30 Metern.
Die Gesamthöhe ist der grösste Höhenunterschied zwischen dem höchsten Punkt der Dachkonstruktion und den lotrecht darunter liegenden Punkten auf dem massgebenden Terrain. Bei den höchsten Punkten der Dachkonstruktion handelt es sich bei Giebeldächern um die Firsthöhe, bei Flachdächern um die Dachfläche, beziehungsweise um den Dachflächenbereich über dem tiefstgelegenen Teil des massgebenden Terrains.

Flachdach

Schrägdach








































Die Hauptaufgabe von Aufzügen ist die effiziente Verkehrsabwicklung, d.h. das Erfüllen der Transportbedürfnisse von Passagieren und Gütern, so dass höchste Transportleistung bei gleichzeitig bestmöglicher wahrgenommener Bedienqualität erreicht wird. Eine Verkehrsanalyse untersucht die Leistung einer Gruppe von Aufzügen, wobei Annahmen betreffend der erwarteten Verkehrssituation getroffen werden. Die wichtigsten Leistungsmerkmale sind Transportkapazität und Wartezeit. Zuverlässige und vergleichbare Ergebnisse für die Leistung werden mittels Benchmark-Simulationen gefunden, welche das erwartete, tatsächliche Verhalten einer Aufzugsgruppe über einen weiten Bereich von Verkehrsanalysen widerspiegeln.
Falls sie den Bedarf für eine Verkehrsanalyse für ihr Projekt haben, stehen wir ihnen gerne mit unserer Kompetenz zur Verfügung.
Für eine Abschätzung der für ihr Bauprojekt benötigten Aufzug Kapazität können sie die Werte der untenstehenden Tabelle entnehmen.


Für die Planung grösserer Objekte wie z. B. Geschäftshochhäuser, Hotels oder Krankenhäuser ist die Durchführung computerunterstützter Simulationen für die verschiedenen Verkehrsarten unerlässlich. Solche Analysen liefern dem Planer Kennwerte, mit denen die Bewältigung des Verkehrsaufkommens qualitativ beurteilt werden kann.